948 Picaacho DriveLa Habra Heights, CA 90631
Due to the health concerns created by Coronavirus we are offering personal 1-1 online video walkthough tours where possible.




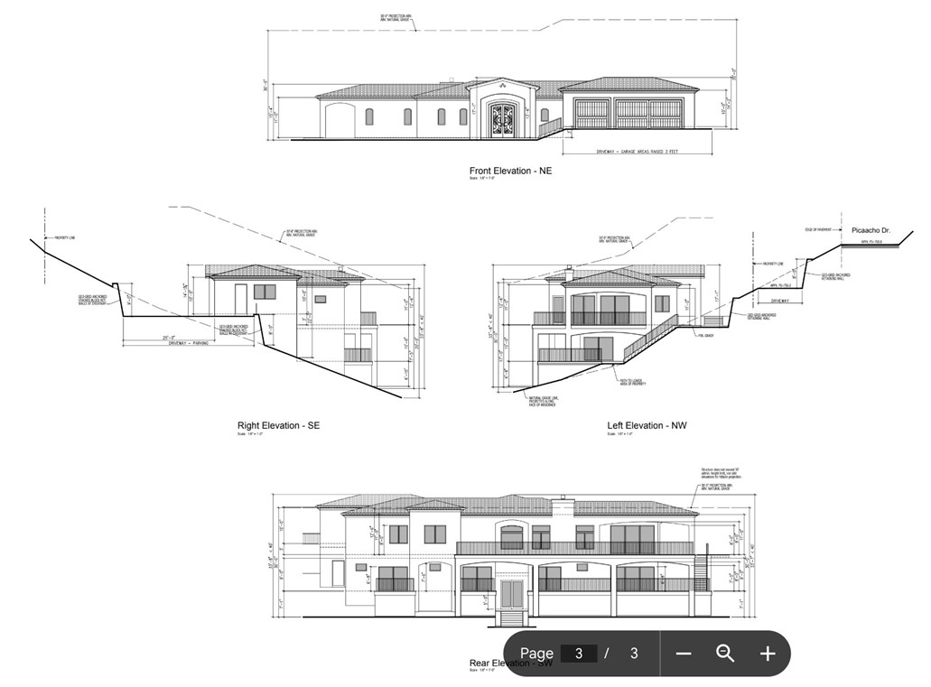
Vacant panoramic view lot with completed architectural plans for a custom luxury residence in the prestigious hills of La Habra Heights. This exceptional approximately 1.6-acre hillside parcel offers breathtaking city-light and ocean views and the opportunity to continue a thoughtfully designed approximately 3,100 square foot two-story home featuring 4 bedrooms, expansive view decks, and an attached 3-car garage, all positioned to maximize privacy and surrounding scenery. Extensive site studies and engineering work have already been completed, including soils investigation and septic feasibility, providing a significant head start for the next owner. The project has progressed through Planning, Engineering, Fire, and Landscape review with the City of La Habra Heights and is pending final civil engineering completion prior to RTI clearance, with approximately $3,500 remaining for grading plan submittal and civil clearance. The property features approximately 218 feet of frontage, approximately 387 feet of depth, and about 180 feet of width across the lower portion of the lot, creating a generous building envelope and flexible design potential. A rare small flat pad at the lower portion of the property offers additional possibilities for a future ADU, guest house, studio, pool area, garden retreat, or outdoor entertaining space, subject to city approval. Surrounded by multi-million-dollar estates and tranquil hillside landscapes, this is a rare opportunity to acquire a premier view lot with meaningful architectural and engineering progress already in place. On exceptionally clear days, Catalina Island may be visible in the distance. All information deemed reliable but not guaranteed. Buyers to independently verify plans, permits, utilities, boundaries, and development requirements.
| 11 hours ago | Listing first seen on site | |
| 11 hours ago | Listing updated with changes from the MLS® |
This information is for your personal, non-commercial use and may not be used for any purpose other than to identify prospective properties you may be interested in purchasing. The display of MLS data is usually deemed reliable but is NOT guaranteed accurate by the MLS. Buyers are responsible for verifying the accuracy of all information and should investigate the data themselves or retain appropriate professionals. Information from sources other than the Listing Agent may have been included in the MLS data. Unless otherwise specified in writing, the Broker/Agent has not and will not verify any information obtained from other sources. The Broker/Agent providing the information contained herein may or may not have been the Listing and/or Selling Agent.
Did you know? You can invite friends and family to your search. They can join your search, rate and discuss listings with you.